weitere Informationen zur Generalsanierung der Hermann-Greiner-Realschule
Die Hermann-Greiner-Realschule ist in der Vergangenheit mit den Veränderungen der Schülerzahlen, der Aufgaben und der pädagogischen Inhalte baulich gewachsen.
Die Schule besteht aus mehreren Gebäudeteilen. Der älteste Teil stammt aus dem Jahr 1949. Die letzte Gebäudeerweiterung war eine Dachaufstockung im Jahr 2004. Davor entstanden Erweiterungen in den 60er, 80er und den 90er Jahren, als die Schule u.a. eine Tiefgarage erhielt. Verfügbare Flächen stehen nach diesen Erweiterungen auf dem Grundstück nur noch sehr begrenzt zur Verfügung.
Im Jahr 2012 wurde eine Strukturanalyse für den Gebäudekomplex durchgeführt. Ziel der Strukturanalyse war es, Entwicklungsmöglichkeiten der Schule und des Schulstandorts aufzuzeigen. Dabei wurde ein mehrgleisiger Ansatz verfolgt: Zum einen wurden schulische Fakten, wie Schülerzahlentwicklung, pädagogische Inhalte, aktuelle und zukünftige Ausrichtung der Schule in Workshops mit der Schule, erarbeitet und ausgewertet. Zum anderen erfolgte eine genaue räumliche Bestandsaufnahme, die die Zuordnung von Räumen zu Funktionseinheiten genauso überprüfte, wie die bauliche Eignung eines Raumes für den vorgesehenen Zweck.
Die über mehrere Jahrzehnte gewachsene Schule stellt die Planer immer wieder vor große Herausforderungen. Allein Sanierung, Umbau und Erweiterung der Schule im laufenden Schulbetrieb auszuführen, verlangt von Schülern, Lehrern und allen Beteiligten ein Höchstmaß an Flexibilität und Rücksichtnahme.
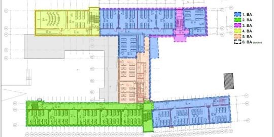
Die über mehrere Jahre laufende Generalsanierung der HGR wurde in fünf Bauabschnitte unterteilt.
Im Januar 2018 startete der erste Bauabschnitt im hinteren Gebäude entlang der Damaschkestraße. Dort wurden in den oberen Stockwerken die Klassenzimmer saniert. Im Erdgeschoss entstand die neue Lehrküche. Am Ende des Gebäudes wurde ein neues Treppenhaus eingebaut.
Im hinteren Gebäude entlang der Steinachstraße wurde der bislang aufgeständerte Bereich unterbaut, um zusätzlich Fläche zu schaffen. Hier wurde die neue Toilettenanlage untergebracht. Im September 2019 wurde der 1. Bauabschnitt abgeschlossen und der Schule zur Nutzung übergeben.
Im August 2021 startete der 2. Bauabschnitt. Hier wurden im vorderen Gebäude entlang der Damaschkestraße weitere Klassenzimmer sowie die Werkräume im Untergeschoss saniert.
Aktuell laufen die Bauarbeiten im 3. Bauabschnitt. Diese dauern von April 2023 bis März 2024. Mit der Baumaßnahme im 2. Obergeschoss wird der Umbau des nördlichen Gebäudeteils an der Steinachstraße abgeschlossen. Hier werden drei naturwissenschaftliche Fachunterrichts- und Vorbereitungsräume untergebracht. Baulich wird das jetzt als abgesetztes Dachgeschoss ausgebildete Stockwerk so umgebaut, dass mit dem anschließend folgenden Neubau des Mensagebäudes an der Ecke Steinach- und Gottlob-Banzhaf-Straße, eine einheitliche Fassade entlang der Steinachstraße gebildet wird. Hofseitig wurde bereits ein Erkeranbau rückgebaut, um auch im nördlichen Schulhof ein ruhigeres Erscheinungsbild im Zusammenspiel der aus drei verschiedenen Bauzeiten stammenden Baukörper zu erreichen.
Im Anschluss an den 3. Bauabschnitt wird die Tiefgarage saniert. Im gleichen Zuge erfolgt die Umgestaltung des hinteren Schulhofes.
Die weiteren Bauabschnitte 4 und 5 beinhalten Abriss und Neubau des vorderen Gebäudes an der Steinachstraße inklusive Mensa, den Umbau des Verwaltungsbereichs, die Umgestaltung des Eingangsbereichs sowie die Errichtung einer Bibliothek/Mediathek.
Um das Gebäude künftig barrierefrei nutzen zu können, wird im 5. Bauabschnitt ein Aufzug eingebaut.
-min.png?f=%2Fsite%2FNeckarsulm-2022%2Fget%2Fparams_E132049192%2F1161557%2FBalduin_03%2520%25281%2529-min.png&w=700&h=1000)





